貸店舗・事務所
貸店舗
NEW
《「名古屋」駅徒歩約5分! 1棟貸》名古屋市西区名駅2丁目
- 賃料
- 1,32,000円
- 交通機関
- 地下鉄・JR他「名古屋」駅 徒歩約5分
- 所在階
- 1棟
- 契約面積
- 延223.69㎡
POINT
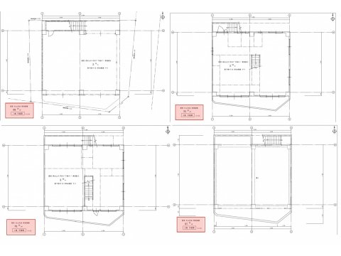
「名古屋」駅徒歩約5分!1棟貸店舗です。角地のため視認性良好。屋階(87.78㎡)も使用可能です。業種、業態等、お気軽にお問い合わせください。
| 所在地 | 名古屋市西区名駅2丁目 |
|---|---|
| 構造・階数 | RC造 陸屋根 高床式2階建 |
| 共益費 | 賃料に含む |
| 保証金 | 5ヶ月 |
| 償却 | 5年未満100% 10未満50% 10年以上30% |
| 築年月 | 1986年1月 |
| 現況 | 使用中 |
| 引渡 | 2026年3月中旬 |
| 備考 | ●各階床面積:1階69.3㎡ 2階74.77㎡ 3階74.77㎡ 4階(バルコニー)87.78㎡ ●賃貸保証会社加入要(保証料借主負担) ●火災保険加入要 |




