検索

キーワード

種目

地区

金額

メニューを閉じる

貸店舗・事務所

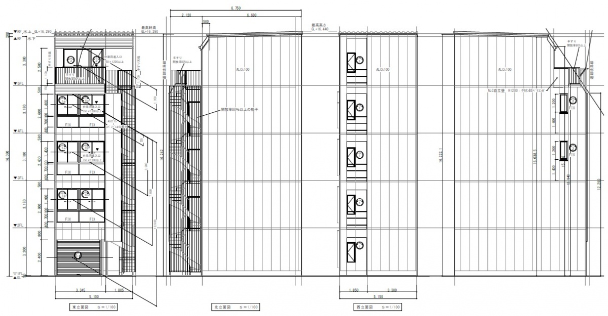
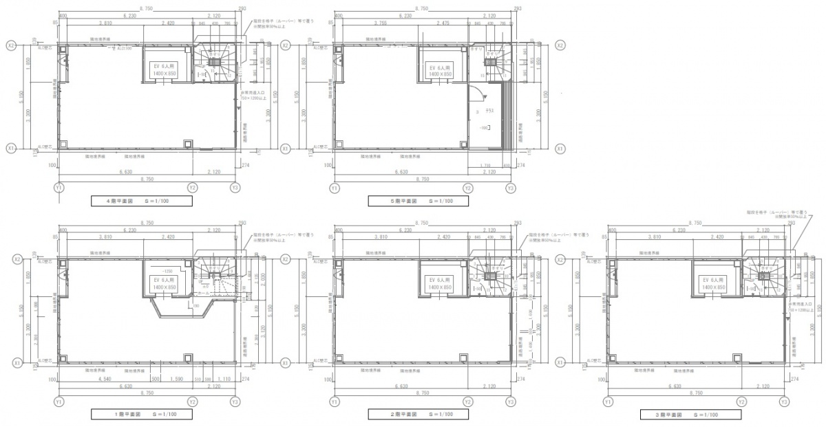
《「名古屋」駅徒歩約2分!新築貸店舗!》名古屋市中村区椿町

賃料
1,589,500円
交通機関
JR・地下鉄「名古屋」駅徒歩約2分
所在階
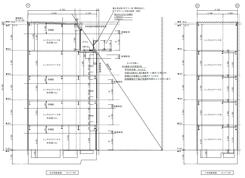
1~5階(一括)
契約面積
延169.7坪(延51.33坪)
POINT

「名古屋」駅徒歩約2分! 新築貸店舗ビルです。 天井高約3mあるため広々とした空間が演出できます。 飲食店はもちろん物販店やサロンなどサービス店舗にも好適です。 業種・業態お気軽にご相談ください。

所在地 名古屋市中村区椿町
構造・階数 鉄骨造 陸屋根 5階建
共益費 44,000円
保証金 6ヶ月
償却 5年未満100%
8年未満88%
8年以上33%
築年月 2025年12月初旬(予定)
現況 建築中
引渡 2025年12月初旬(予定)
備考 ●看板掲出料 月額16,500円
●インターネット(フレッツ光)使用料 月額16,500円
●ゴミ処理費別途要(個別契約)
●賃貸保証会社加入要(保証料借主負担)
●火災保険加入要(指定あり)
●原状回復・消防設備工事指定業者あり
  • 株式会社タイホーにお問い合わせする

検索

キーワード

種目

地区

金額