貸店舗・事務所
《地下鉄「大須観音」駅徒歩約7分!新築店舗2階!》名古屋市中区大須3丁目
- 賃料
- 341,000円
- 交通機関
- 地下鉄鶴舞線「大須観音」駅徒歩約7分
地下鉄名城線「上前津」駅徒歩約9分
地下鉄名城線「矢場町」駅徒歩約13分 - 所在階
- 2階
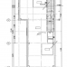
- 契約面積
- 85.85㎡(約26坪)
POINT
地下鉄鶴舞線「大須」駅徒歩約7分! 赤門通沿いの新築貸店舗です。 天井高2.7mあるため開放感のあるお店づくりが可能です。
| 所在地 | 名古屋市中区大須三丁目 |
|---|---|
| 構造・階数 | 鉄骨造 陸屋根 3階建 |
| 共益費 | 無 |
| 保証金 | 6ヶ月 |
| 償却 | 5年未満/100% 8年未満/80% 8年以上/30% |
| 築年月 | 2024年10月末(予定) |
| 契約期間 | 10年(定期借家契約) |
| 現況 | 建築中 |
| 引渡 | 2024年10月末(予定) |
| 備考 | ●賃貸保証会社加入要(保証料借主負担) ●火災保険加入要 |


















