居抜き店舗
《「上前津」駅徒歩約6分!居抜き美容室》名古屋市中区千代田2丁目
- 賃料
- 110,000円
- 交通機関
- 地下鉄東山線「上前津」駅徒歩約6分
- 造作価格
- 242万円
- 所在階
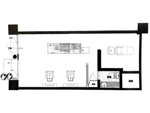
- 1階
- 契約面積
- 36.26㎡(約10.97坪)
POINT
造作価格を見直しました!(275万円→242万円)「上前津」「鶴舞」「矢場町」駅が徒歩圏の好アクセス!瀟洒な居抜き美容室です。カット面2席、シャンプー台1台のコンパクトな設計のためワンオペや、少人数でのアットホームな運営に好適です。
| 所在地 | 名古屋市中区千代田2丁目 |
|---|---|
| 構造・階数 | SRC造 陸屋根 地下1階付11階建 |
| 共益費 | 11,000円 |
| 保証金 | 60万円 |
| 償却 | 55% |
| 契約期間 | 2年(普通借家契約) |
| 築年月 | 1978年9月 |
| 設備 | 電気・上下水道・都市ガス |
| 現況 | 使用中 |
| 引渡 | 相談 |
| 備考 | ●インターネット無料 ●セキュリティ無料 ●賃貸保証料借主負担 ●火災保険加入要 |






























