居抜き店舗
《「栄」駅徒歩約4分!造作0円!居抜きカフェ・ダイニング》名古屋市中区栄4丁目
- 賃料
- 209,440円
- 交通機関
- 地下鉄東山・名城線「栄」駅徒歩約4分
- 造作価格
- 無
- 所在階
- 3階
- 契約面積
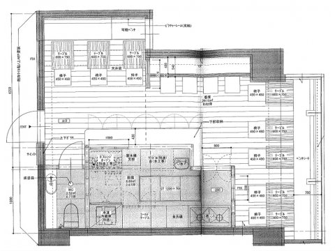
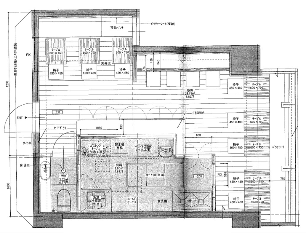
- 44.89㎡(約13.6坪)
POINT
造作0円!地下鉄「栄」駅徒歩約4分!居抜きカフェ・ダイニングです。大型のガラスサッシのため眺望良好です。「中日ビル」や「栄トリッドスクエア」など再開発エリア至近のため集客が期待できます。
| 所在地 | 名古屋市中区栄4丁目 |
|---|---|
| 構造・階数 | SRC造 7階建 |
| 共益費 | 37,400円 |
| 保証金 | 8ヶ月 |
| 償却 | 1年未満100% 1年以上50% |
| 築年月 | 1982年12月 |
| 設備 | 電気・上下水道・都市ガス・エレベーター |
| 契約期間 | 2年(普通借家契約) |
| 現況 | 空室 |
| 引渡 | 相談 |
| 備考 | ●現状渡し(スケルトン返還義務あり) ●火災保険加入要 (漏水担保付借家賠2,000万以上) ●賃貸保証会社加入要(保証料借主負担) •電気基本料金18,605円 •水道基本料金1,950円 •町内会費400円 •ゴミ処理費6,600円 •ネズミ駆除2,750円 |










































