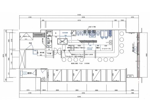
居抜き店舗
《「千種」駅 徒歩約2分!居抜き居酒屋》名古屋市東区葵3丁目
- 賃料
- 318,164円
- 交通機関
- JR中央本線・地下鉄東山線「千種」駅徒歩約2分
- 造作価格
- 330万円
- 所在階
- 1階
- 契約面積
- 68.31㎡(約20.66坪)
POINT
「千種」駅徒歩約2分! 1階路面店の居抜き居酒屋です。 大規模再開発が進む「千種」駅至近のため集客が期待できます。 業種・業態などお気軽にご相談ください。
| 所在地 | 名古屋市東区葵3丁目 |
|---|---|
| 保証金 | 4ヶ月 |
| 共益費 | 賃料に含む |
| 構造・階数 | SRC造 陸屋根 13階建 |
| 償却 | 100% |
| 築年月 | 1987年3月 |
| 設備 | 電気・上下水道・都市ガス |
| 契約期間 | 2年(普通借家契約) |
| 現況 | 使用中 |
| 引渡日 | 相談 |
| 備考 | ●看板掲出料:月額11,000円 ●現状渡し(一部除外品あり) ●原状回復義務(スケルトン返還)あり ●賃貸保証会社加入要 ●火災保険加入要 |
















































