居抜き店舗
《「栄」駅徒歩約4分!内装付貸店舗!》名古屋市中区栄4丁目
- 賃料
- 124,696円
- 交通機関
- 地下鉄名城線「栄」駅徒歩約6分
- 造作価格
- 無
- 所在階
- 地下2階
- 契約面積
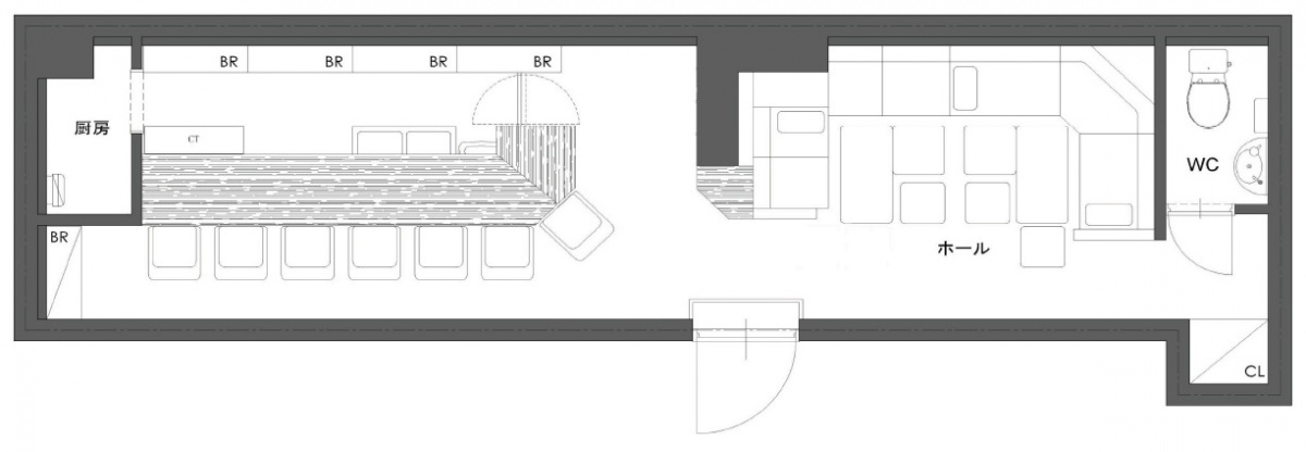
- 32.46㎡(9.82坪)
POINT
造作0円! 「栄」駅徒歩約4分! 中日ビルや栄トリッドスクエア至近のためオフィスワーカー多く集客が期待できます。 リフォーム渡しの内装付き貸店舗のため初期費用が抑えられます。 お気軽にお問い合わせください。
| 所在地 | 名古屋市中区栄4丁目 |
|---|---|
| 構造・階数 | RC造 陸屋根 地下2階付地上5階建 |
| 共益費 | 21,604円 |
| 保証金 | 880,000円 |
| 償却 | スライド |
| 築年月 | 1983年10月 |
| 現況 | 使用中 |
| 引渡 | 2025年8月初旬 |
| 備考 | ●リフォーム渡し ●害虫駆除費1,870円 ●レジャー会費200円 ●火災保険料28,850円 ●看板取替費用88,000円 ●鍵交換代13,200円 ●連帯保証人要(同一生計不可) ●賃貸保証会社にご加入いただく場合がございます。 |




















